品牌:江苏燊朗
通讯方式:RS485总线和RS232
通讯介质:ZR-RVSP-2×1.5(双绞线)
通讯距离:1000M
起订:1台
供应:10000台
发货:3天内
余压监控系统主机总站服务器可以对疏散通道余压的工作状态进行24小时实时自动巡检,对处于非正常状态的余压给出报警提示。在发生火情时,该系统可以自动调控机械加压送风系统的送风量,也可在消控中心对其进行远程控制。
高层建筑的内部功能一般较为复杂,且用电设备繁多,存在大量的火险隐患,如管理不善很容易发生火灾。特别是一些建筑面积较大、层数较多的高层公共建筑,情况就更为复杂,一旦发生火灾将会造成严重后果。近年来,高层建筑火灾事故呈明显上升趋势,群死群伤事故时有发生,给国家和人民生命财产造成了极大的损失。根据火灾统计资料中对火灾死亡人数的分析,在火灾死亡总人数中,因烟熏致死的占78.9%;在被火烧死的人数中,绝大部分的人员伤亡都是因烟气窒息、中毒,不能安全疏散所致。
造成上述事故
的原因,除了管理漏洞之外,很大一部分是由于防烟区域的正压送风系统有缺漏,在火灾发生时无法有效监测疏散通道内外压力,从而导致烟气进入安全疏散通道,火灾区人们无法进入防烟区进行安全疏散,因此防排烟系统在高层建筑消防安全中处于重要地位。
与各类机械加压送风系统相比,智能余压监 控系统是集工业计算机技术、通信、抗电磁干扰、数字传感技术及消防二总线于一体的智能化系 统。高灵敏度压力信号传感器定时自动巡检并 采集监控区域压力变化等工作状态,对超压等故 障发出报警信号并记录。当防烟楼梯间或前室 余压值达到超压监控值后,余压探测器发出报警 信号,余压控制器打开加压风机风管上的电动旁 通泄压阀; 余压回落到正常区间值后余压探测器发出信号,余压控制器关闭旁通阀,通过控制旁通泄压阀的开启,来保持余压值稳定在规范要求 的区间值内。系统具有实时性、数值化、智能化、自动化连续监控等特点。
智能余压监控系统由余压监控主机、余压探测器、余压控制器、风阀驱动器、系统监控专用软件等部分组成,不低于相关国家标准的功能需求。该系统的设置不影响机械加压送风系统的正常运行。
功能描述:
集中管理所有余压系统设备
超清彩色触摸式显示器
远程实时监控
采用RS485总线通讯和RS232通讯
设置密码管理权限
能接受火灾报警主机联动信号
可上传余压系统数据信息
信息和历史记录存储量大
备电电源支持系统工作大于12小时

全中文菜单式操作界面
产品技术参数:
工作电源:AC220/50Hz
通讯方式:RS485总线和RS232
通讯介质:ZR-RVSP-2×1.5(双绞线)
通讯距离:1000M
备电电源:连续工作12小时以上
监控数量:≤255个余压控制器
历史报警记录:1000条
使用环境:-25℃~+60℃;相对湿度<95%,不结露;海拔<2000M
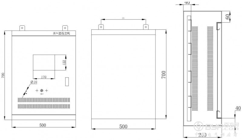
外形尺寸:700(高)*500(宽)*220(厚)
安装方式:壁挂式
