品牌:神舟珠峰
公称压力:40MPa
换向时间:0.5S
直流电机功率:10W
发货:3天内
| 一、概述 24EJF-P型(原SA-V 型)二位四通换向阀是一种采用大扭矩直流减速电机驱动阀芯移动,以开闭供油管道或转换供油方向的一种集成化的换向控制装置;即使在恶劣的工作条件下(如低温或高粘度油脂),动作仍相当可靠。 该阀适用于公称压力为40MPa以下的干、稀油集中润滑系统以及液压系统的主支管路中,同时也可作二位四通,二位三通和二位二通三种型式使用。二、技术参数型号公称压力Mpa换向时间S直流电机功率W电源电压V直流电机扭矩N.m重量kg24EJF-P400.510-2202013使用介质为锥入度不低于220(25℃,150g)1/10mm的润滑脂(NLGI0#~3#)或粘度等级大于N68的润滑油,工作环境温度为-20℃~80℃。 | |
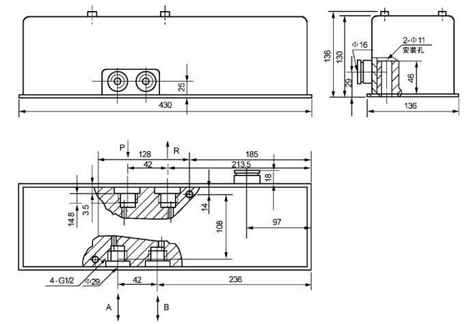
| 三、外形尺寸 | |
![]() | |
| 四、工作原理 该阀主要由直流电机、限位开关、换向阀体,整流变压器装置等元件安装于同一底板上并置于防护罩壳内组成。 系统中的电控箱发出换向信号(系统末端压差开关发出)使直流电机作旋转运动,并通过偏心轮带动阀芯作直线往复运动。当阀芯从原位到达所需要的换向位置时,阀芯端部的挡板触动限位开关动作,发出电信号至电控箱,责令直流电机停止旋转,完成了换向过程。 | |
![]() | |
| 五、使用说明 1、该阀应安装在系统被控主、支管路的前端,且位于通风、 干燥便于检查及周围无运动机构干涉的部位。 2、当作二位二通使用时,须把出油口“B”和回油口“R”封堵。 3、当作二位三通使用时,须把出油口“B”封堵。 4、电控接线按上图原理连接。 六、常见故障及排除方法 1、换向阀不换向。 可能无换向信号输入电机,线脚焊接脱落;电机轴与偏心轮松动未紧固;阀腔内进入杂质滑芯卡死等原因,查明后排除即可。 2、滑芯二端漏油。 主要是二端密封圈损坏引起,可能是密封圈库存久或长时间使用已老化,更换密封圈即可。 |


